







































Апартаменты класса люкс в районе Авсаллар с 0 % рассрочкой платежа на 15 месяцев . «EXODUS GARDEN RESİDENCE»
Exodus Garden Residence расположен в городе Авсаллар в Алании, недалеко от самого известного пляжа Инджекум .
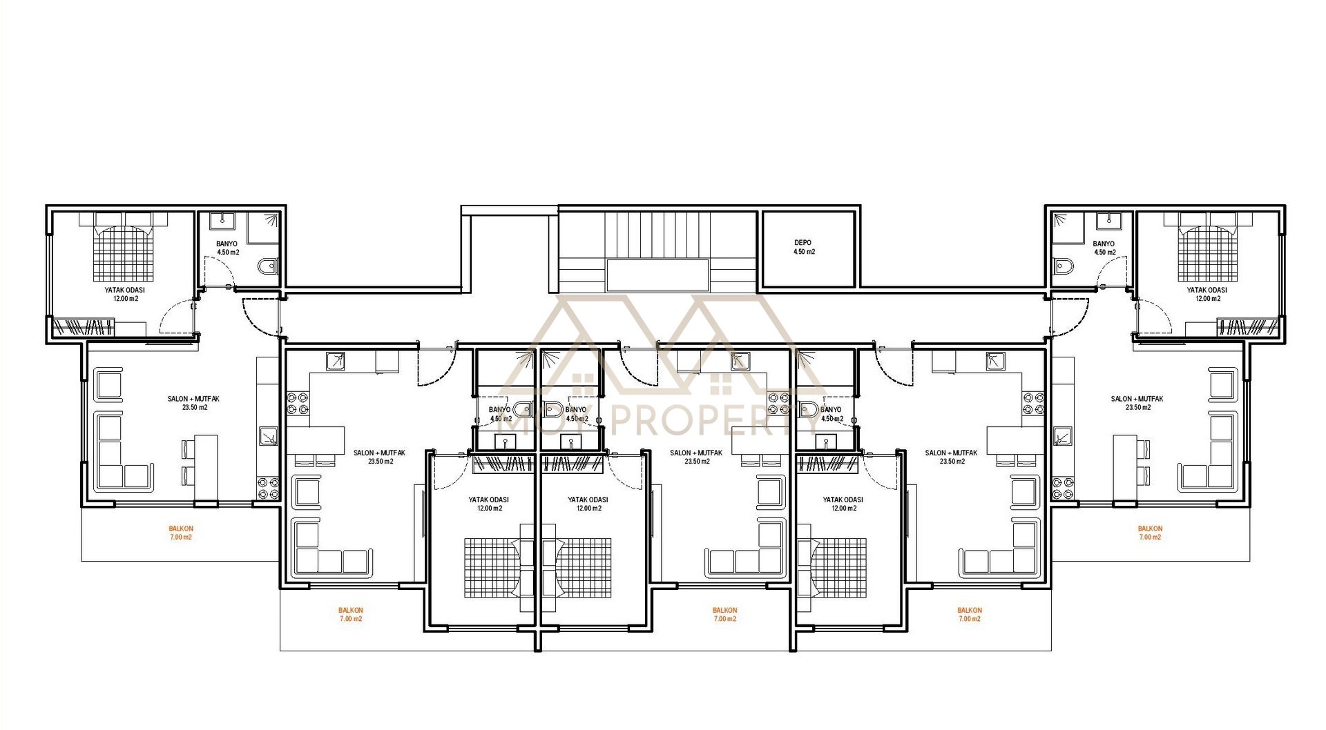
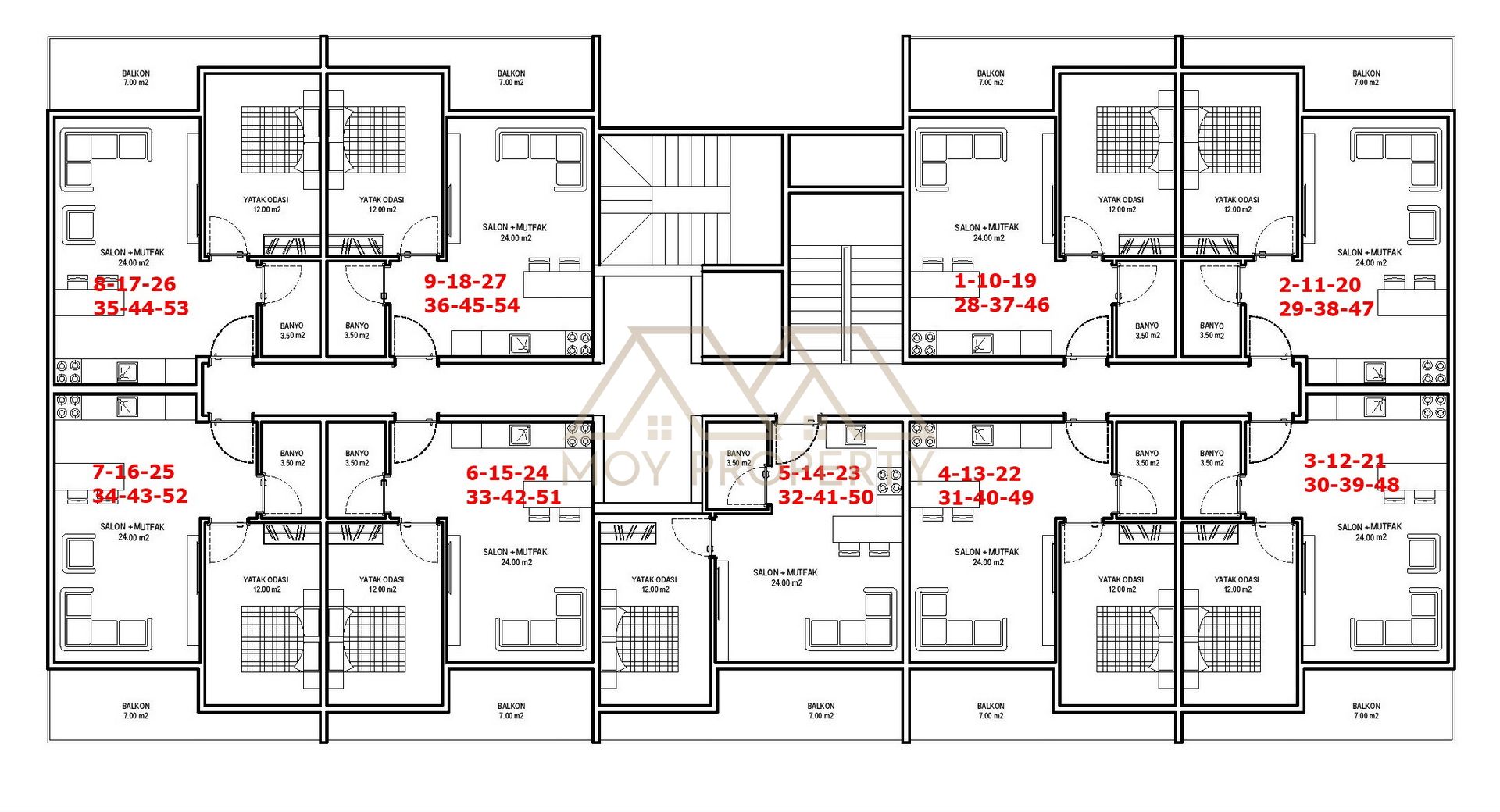
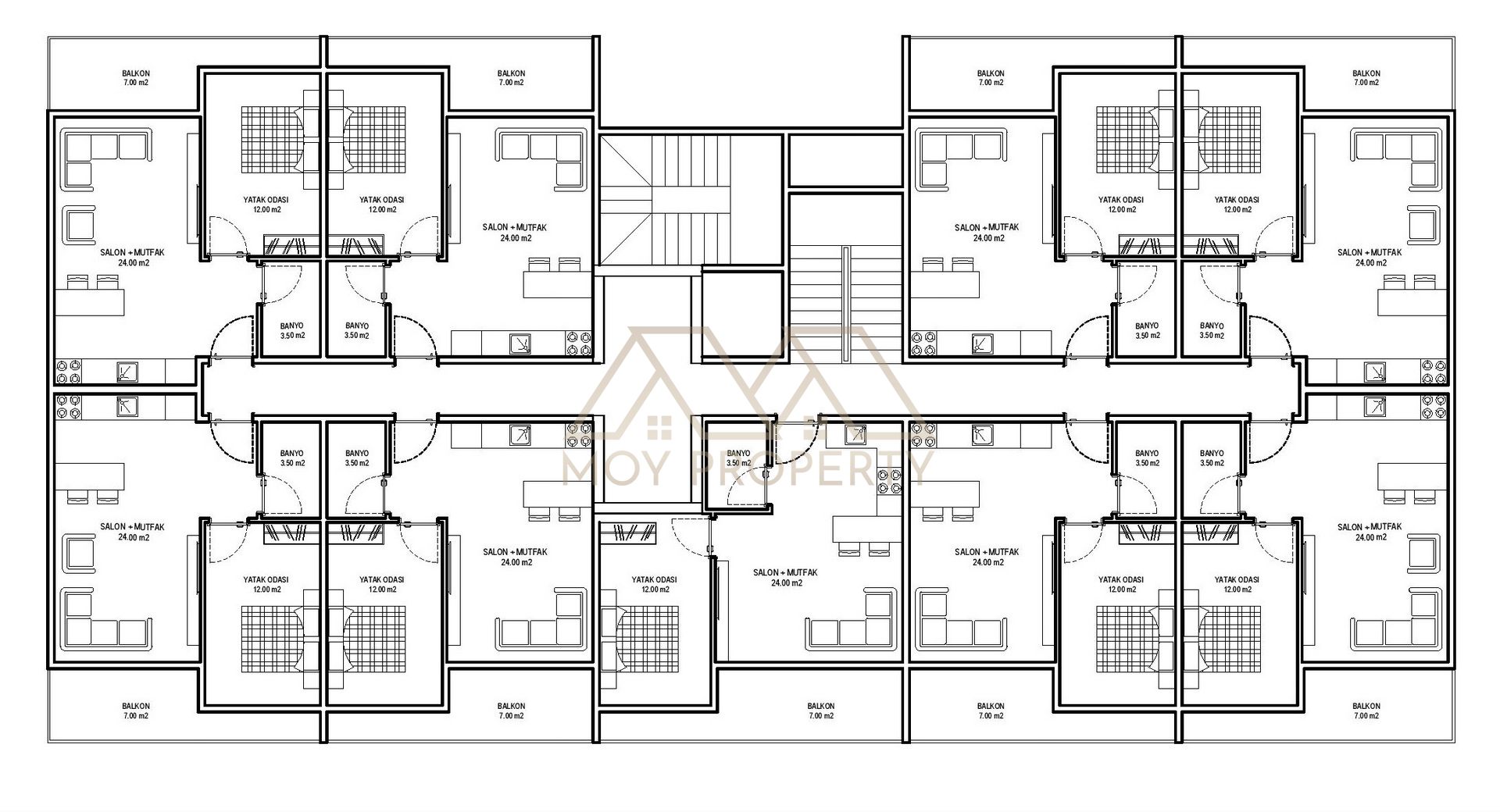
Exodus Garden Residence состоит из 2 жилых блоков, 8 этажей с общей численностью 86 квартир. На выбор есть квартиры 1 + 1 квартиры 50 кв.м. и 2 + 1 пентхаусы по 110 кв.м.
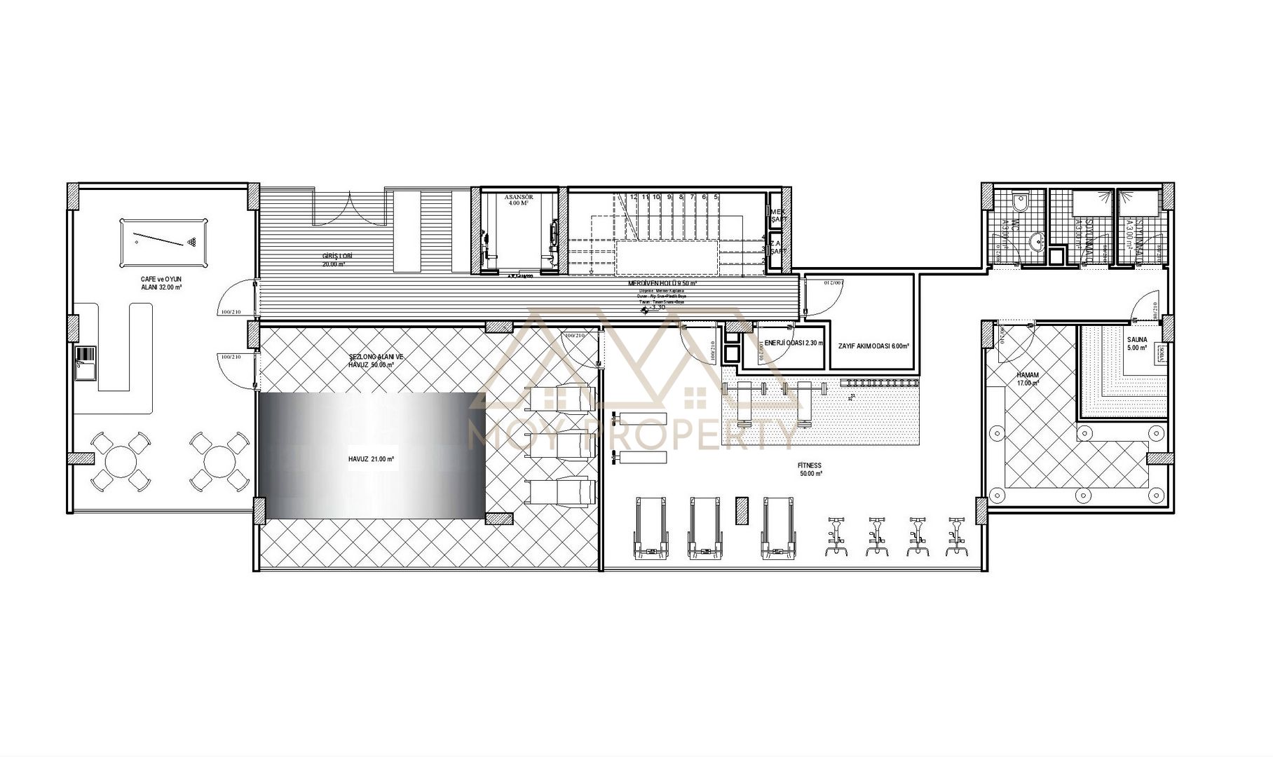
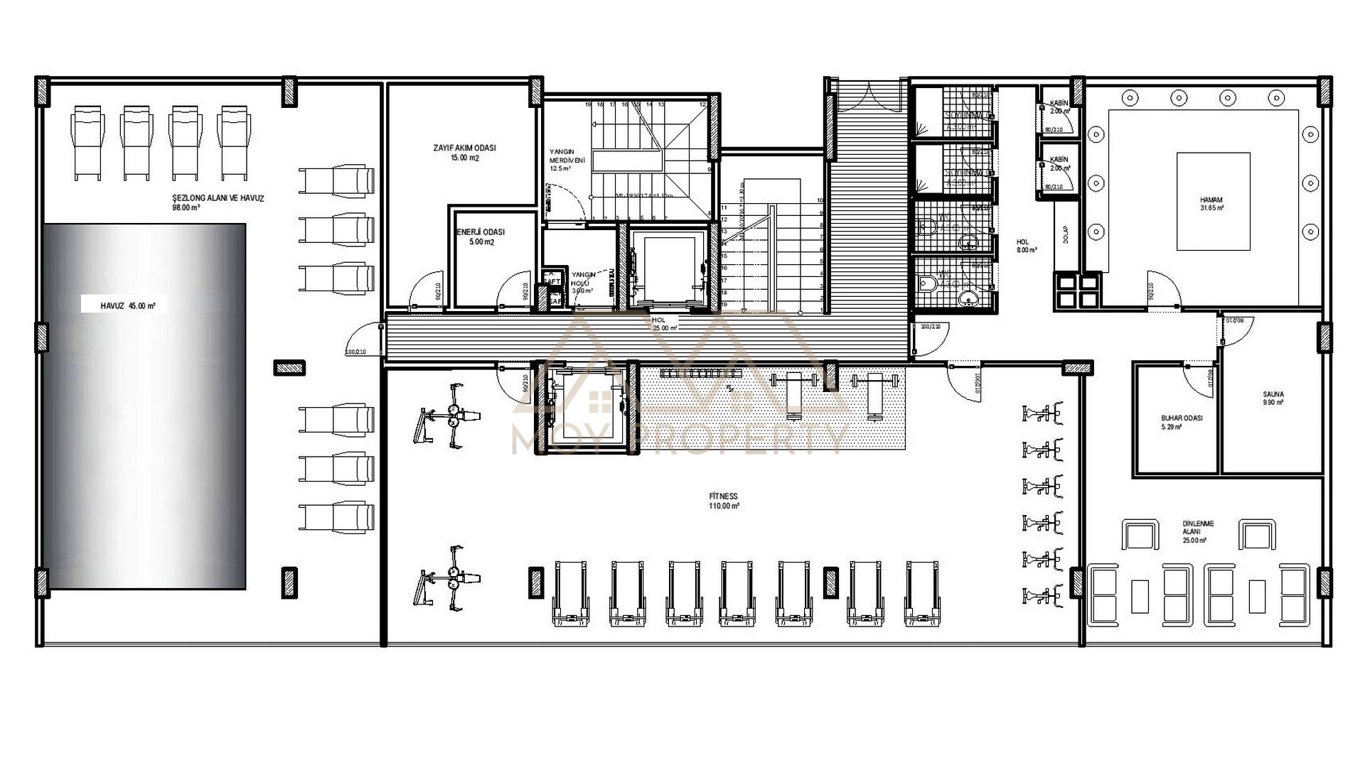
В инфраструктуру комплекса Exodus Garden Residence будет входить открытый и закрытый бассейн,турецкая баня, сауна, парная, комната отдыха, фитнес-центр, ресторан, кафе -бар, детская игровая площадка, игровая комната, беседка и барбекю, , камеры безопасности, парковка, генератор и бесплатный интернет.
Exodus Garden Residence расположен всего в 1500 метрах от знаменитого пляжа Инчекум.
Старт строительства в феврале 2021 года и будет завершен в мае 2022 года.
Апартаменты можно приобрести с беспроцентной рассрочкой до конца строительства.