























RUBY DELUXE VILLA KARGICAK ALANYA
Предлагаем вашему вниманию новый проект от Ruby Projects Construction - комплекс из 6 вилл премиум класса Ruby Deluxe Villas для ценителей роскоши, спокойствия и комфортной жизни.
Каждая вилла будет иметь собственный земельный участок общей площадью 455 м2, построена с использованием современных технологий и выполнена в высочайшем качестве.
Земельный участок, где будет находиться проект, расположен каскадом, таким образом каждая вилла будет обладать шикарным панорамным видом на Средиземное море и бескрайние Торосские горы. Кроме того, добраться до комплекса вилл на авто можно всего за 5 минут от центра района Каргыджак. Расстояние до моря составит 2,7 км.
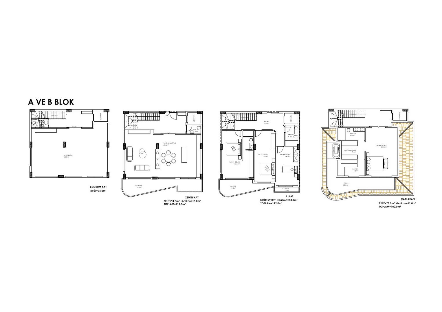
Количество этажей: 4
Планировка: 4+1
Количество ванных комнат: 4
Отметим, что дизайн и планировка вилл, могут быть изменены исходя из пожеланий и стилевых предпочтений покупателя.
Площадь земельного участка для 6 вилл составляет 2735 м2. Виллы типа A,B,C,D имеют общую площадь 419 м2 и жилую - 292 м2. Виллы типа E и F обладают общей площадью 344 м2 и жилой 223 м2. Для каждой виллы предусмотрен лифт, собственная парковка и беседка для барбекю, а также приватный открытый бассейн. На террасах домов предполагается наличие джакузи и сауны, что можно изменить по желанию покупателя.
Характеристика и стандарты планировок:
Алюминиевые окна и двери с двойным остеклением
Автоматические жалюзи
Подогрев пола в нескольких зонах
Система видеонаблюдения
Электрогенератор
Видеодомофон
Джакузи и сауна на террасе
Парковка
Бассейн
Центральное телевидение
Расстояния до некоторых пунктов:
2,7 км до моря
1 км до продуктового магазина
3,5 км от центра города Махмутлар
16 км от центра города Аланья
Начало строительства Ruby Deluxe - 12.2023.
Планируемая дата сдачи в эксплуатацию - 12.2025.
Важное примечание: строительная компания Ruby Projects Construction оставляет за собой право вносить изменения в планы, объекты проекта, дату сдачи, качество материалов и цвета, связанные с проектом вилл Ruby Deluxe.
Все виллы Ruby Deluxe Villas подходят под получение турецкого гражданства!